
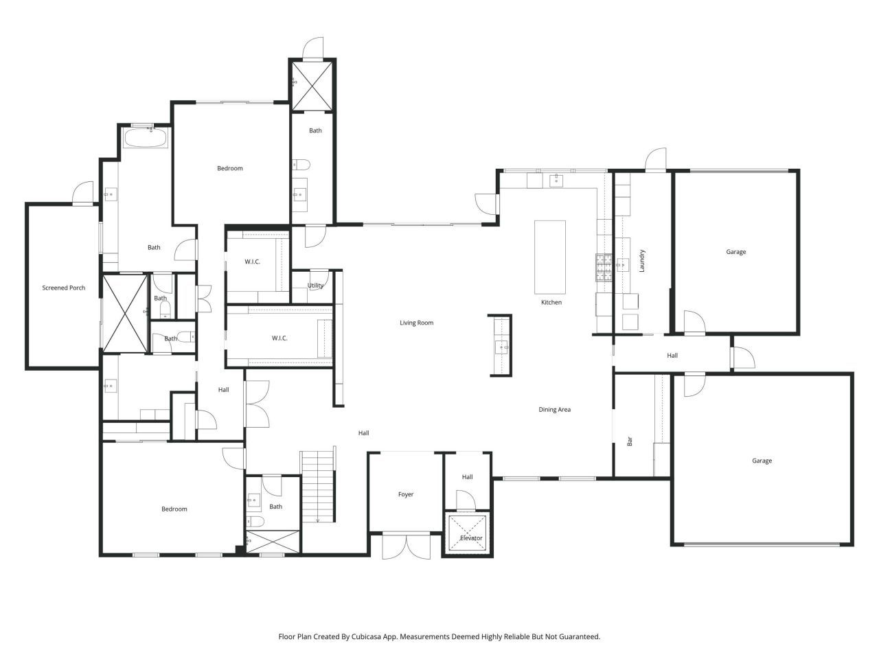
Newly completed in 2025, this exceptional oceanfront estate is located in the heart of The Florida Keys on the premier ocean side of Islamorada. A gated entry welcomes you through lush tropical landscaping and a diverse fruit-tree grove, setting a private and refined arrival. Set on over 2 usable acres with 210 feet of private sandy beachfront and a protected cove, the residence spans 7,590 square feet of interior living space & 1,736 square feet of exterior living, with an expansive 230-foot do...Newly completed in 2025, this exceptional oceanfront estate is located in the heart of The Florida Keys on the premier ocean side of Islamorada. A gated entry welcomes you through lush tropical landscaping and a diverse fruit-tree grove, setting a private and refined arrival. Set on over 2 usable acres with 210 feet of private sandy beachfront and a protected cove, the residence spans 7,590 square feet of interior living space & 1,736 square feet of exterior living, with an expansive 230-foot dock. Designed for seamless indoor-outdoor living, the home features a dramatic great room with 23-foot ceilings, panoramic Atlantic exposure, and expansive covered terraces with summer kitchen and outdoor dining areas. A 65-foot heated lagoon-style pool with swim-up bar and fire-pit lounge creates a resort-caliber setting. The chef's kitchen is appointed with Sub-Zero, Wolf, and Thermador appliances. Additional highlights include dual primary suites, private orchid garden, lounge & recreation room, elevator, Sonos surround sound, impact windows and doors, metal roof, double-height garage, water-sports storage room and a full home generator. The essence of beachfront living in Islamorada, combining impressive scale and ultimate privacy. ***A contiguous 0.7-acre lot with development rights for an ancillary building with upstairs storage is available separately.
View MoreCourtesy of
Agency Name: Berkshire Hathaway HomeServices EWM Realty
Agency Phone: (305) 960-2400
Agent Name: Jason Zarco
Presented by
Agent Name: Stanley Davila
Agent Phone: 689.218.0333
Agency Title: The Keyes Company
Request Info
Send an email with a link to
88351 Old Highway, Islamorada, FL 33036.
Email 88351 Old Highway, Islamorada, FL 33036
Thank you for your inquiry! As a thank you, we have a Special Mortgage Offer for You.
We would like to provide you a free, no-obligation, home loan pre-approval review.